Descrição
A CBRE, em regime de exclusividade, apresenta uma rara oportunidade de investimento em um conjunto comercial de alto padrão no Edifício Eluma, localizado no coração financeiro e cultural de São Paulo, a Avenida Paulista.
Este ativo representa a combinação ideal de uma localização icônica com a segurança de uma receita de locação imediata, estando 100% ocupado
Destaques do Investimento
Localização Prime e Irreplicável: Situado na Avenida Paulista, o principal centro de negócios e cartão postal da cidade, garantindo status e visibilidade
. Geração de Renda Imediata: O ativo encontra-se 100% locado, proporcionando um fluxo de caixa estável e previsível para o investidor desde o primeiro dia
. Conectividade Excepcional: Localizado em frente à estação de metrô Trianon-Masp e com acesso a dezenas de linhas de ônibus, oferecendo máxima conveniência
. Proximidade a Polos de Prestígio: A poucos metros do Shopping Cidade São Paulo e do complexo de luxo Cidade Matarazzo, que inclui o Hotel Rosewood, valorizando todo o entorno
.
Detalhes do Ativo
Endereço: Avenida Paulista, 1294 - Bela Vista, São Paulo - SP
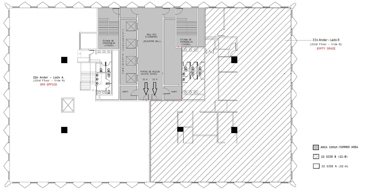
Objeto da Venda: 1 conjunto comercial com 503 m² de área privativa
Andar: 22º andar, lado Paulista
Ocupação: 100%
Vagas de Garagem: 8 vagas
Esta é uma oportunidade singular para adquirir um ativo com renda em um dos endereços mais resilientes e desejados do Brasil.
Localização Estratégica
O Edifício Eluma está estrategicamente posicionado para capturar o dinamismo da Avenida Paulista. A sua localização privilegiada oferece:
Acesso Direto: Em frente à estação de metrô Trianon-Masp
. Conveniência: A 150 metros do Shopping Cidade São Paulo, com uma vasta gama de lojas e restaurantes
. Cultura e Lazer: Próximo ao MASP e ao Parque Trianon
. Polo de Luxo: A 200 metros do complexo Cidade Matarazzo e do Hotel Rosewood
.








